Löydä luotettava urakoitsija laminaatin asennukselle
Saat useamman tarjouksen yhdellä tarjouspyynnöllä
Kilpailuta laminaatin asennus →
Oletko urakoitsija?

Maalaus seinät ja katto +30m2 laminaatin asennus

Osasto: Maalari, Maalaus, Sisustus , Lattia-, Laatoitustyöt

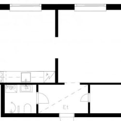
36m2 (1h+avokeittiö) Ruskeasuolla on pintaremontin tarpeessa. Kohteessa tarkoitus toteuttaa seinien ja katon maalaus ja tämän jälkeen laminaatin sekä uusien listojen asennus. Kohdehuoneet ovat pohjapiirrustuksesta: keittiö 10m2, olohuone 13m2 ja eteinen 4m2. Huonekorkeus 2.60m. Seinä- ja kattopinnat ovat maalarinvalkoiset ja ok kunnossa.

Tarjouksia otetaan vastaan koko remontista. Toimittaja vastaa remonttiroskien viennistä ja ilmoittaa hinnat sis. työt, tarvikkeet ja alv Työn pitää olla kotitalousvähennyskelpoinen. Ennen tilausta ostaja edellyttää arviointikäyntiä paikan päällä.

Maalit - tilaaja hankkii, sen jälkeen kun maalarin kanssa on yhdessä tarve ja sopivuus kartoitettu, ellei toisin sovita.

Laminaatti hankittuna:Logiclick Classico Sawcut 8 mm KL32 + kopinaeste solumuovi, 1 ps kiinnikkeitä. Asentajan vastuulla toimia asennusohjeiden mukaisesti, ohjeet paikanpäällä. Pohjalla mosaiikkiparketti, jonka päälle tämä laminaatti asennetaan. Pientä heittoa lattiantasaisuudessa, kuten odotettavissa vanhassa talossa.

Lue myös: Parketin asennuksen hinta

Yhteenveto (työn numero: 12606)

Käyttäjä
avaltone
Kustannusarvio
400,00 €
Alin tarjous
28,00 €
Sulkeutunut
6.10.2015 09:04
Paikkakunta
00280 Helsinki
Toteutus
1.10.2015
Toivottu valmistuminen
9.10.2015
Materiaalit
Työn tilaaja vastaa materiaaleista
Maksu
Toteutuksen jälkeen
Ilmoitettu
29.9.2015 09:04
Löydä luotettava urakoitsija laminaatin asennukselle
Saat useamman tarjouksen yhdellä tarjouspyynnöllä
Kilpailuta laminaatin asennus →
Oletko urakoitsija?
Kuvat
Kuva #1 Kuva #2

Tarjoukset

Näillä tiedoilla tarjoamme tuntihintaamme 34€ (+Alv.). Tulemme mielellämme keskustelemaan tarkemmin remontistanne ja tekemään siltä pohjalta tarjouksen. Käynti on maksuton ja ei velvoita teitä mihinkään.
Kauttamme saatte kotitalousvähennykset, meillä on kattavat vakuutukset ja yritysalennukset mm. K-Raudasta ja Laattapisteestä.
Ystävällisin terveisin
Findeko Remontointi Oy
Päivi Väyrynen
info@findeko.com
puh. 0400402523
Eteläinen Hesperiankatu 22 A17, 00100 Hki
www.findeko.com
34,00 € 30.9.2015

Hei
Olisiko mahdollista että tullaan paikalle ?
Silloin pystyn tekemään Tarkempaa tarjoukse jos olen nähnyt urakka kohte.
34/h eur. sis. 24% alv

protunts@gmail.com
Puh.0407440490
Ystävällisin terveisin.
Protunts Oy

34,00 € 30.9.2015

Hei,

tulisin mielelläni katsomaan huoneistoa, annan hinta-arvion nähtyäni kohteen.

Terveisin,
Lattiasta Kattoon Plus
lattiasta.kattoon@gmail.com

400,00 € 29.9.2015
moi.tarjous 0449138269
600,00 € 29.9.2015

Hei.
Arviohintamme on 900,00 € sis alv 24%.
Katselmuksen jälkeen annamme sitovan hinnan ja kirjallisen sopimuksen.

Ystävällisin terveisin Prolive oy.
info@prolive.fi
www.prolive.fi
045 885 9383

900,00 € 29.9.2015
rrespoo
(20)
Hinta arvio. Soittele 0404487495 voisin käydä paikanpäällä jonka jälkeen tarkka tarjous
900,00 € 30.9.2015
Enberg
(2)

Terve.
Alustava tarjous 1000€ sis. Alv24% ja työt.
Tarkka hinta ilmaisen katselmuksen jälkeen.
Vakutukset on.
Työt kotitalousvähennys kelpollisia (45%).

F:ma A.Enberg
0445485620
Andre.enberg@gmail.com

1 000,00 € 30.9.2015
Hei ,
tarjouksemme näkemättä kohdetta on
1200e + alv 24%.
Terveisin
Tuomo Grönholm
P.0405590594
1 200,00 € 29.9.2015

Työn arvioitu hinta + alv. Paikan päällä sitova hinta + urakkasopimus. Kotitalousvähennysoikeus.
Kokenut maalari/remonttimies.

www.tuomasmaalaus.com
p.0445284062

1 200,00 € 29.9.2015
Lopulinne tarjous.sis alv
2 100,00 € 29.9.2015
Vitali
(0)
tuntityö 28eur ALV 0%
28,00 € 3.10.2015

Hei
Soittele niin tulen katsomaan ja annan tarjouksen työstä.

Hs-pinta oy Marko
P.0405798858

35,00 € 29.9.2015
JussiR
(0)
Виталий позвони договоримся.Руслан
200,00 € 3.10.2015
Katselmus?
1 200,00 € 29.9.2015
morjes.tarjous sisältää työn,alv.n,roskien poisviennin,kotitalous vähennys,25v.kokemuksella.0408752368/mäkinen
1 800,00 € 29.9.2015