Portaiden rakentaminen, umpiportaat, uudiskohde
Portaiden rakentaminen uudiskohteeseen. Kohde 2-kerroksisen puutalo. Portaat U-malliset ja umpiportaat.
Portaita ei tarvitse tässä vaiheessa pinnoittaa millään. Portaat pinnoitetaan parketilla samaan aikaan lattian parketin asennuksen kanssa.
Portaiden alle jää komero ja sieltä pitäisi levyttää kipsilevyllä portaiden alapuoli / komeron katto.
Portaiden lisäksi urakkaan kuuluu nousujen väliin jäävän väliseinän rakentaminen sekä yläkerran kaiteen rakentaminen. Runko kertopuuta ja levytys kipsilevyllä. Tilaaja hankkii materiaalit.
Urakoitsija vastaa työkaluista ja telineistä, tilaaja materiaaleista.
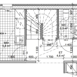
Liitteenä porrasaukon mittatiedot sekä tarkempia tietoja portaista. Askelman nousu n. 175 mm ja etenemä n. 250 mm. Ensimmäinen askelma alkaa eteisen puolelta, loput askelmat kulkevat kuvan mukaisesti porrasaukossa. Sen vuoksi urakkatarjouksen ja kuvan huonekorkeus on eri (ero yhden nousen verran eli n. 175 mm).
Yhteenveto (työn numero: 14846)
Oletko urakoitsija?

